UİP-351018657 Plan İşlem Numaralı İmar Planı Değişikliği İlanı

CHP 11.08.2023 12:34:15 0
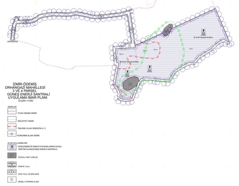
UİP-351018657 Plan İşlem Numaralı İmar Planı Değişikliği İlanı

DUYURU

Belediye Meclisimizin 08.06.2023 tarih ve 86 sayılı kararı ile uygun görülerek İzmir Büyükşehir Belediye Meclisinin 14.07.2023 tarih ve 773 sayılı kararı ile onaylanan; Orhangazi Mahallesi, 3 ve 4 parsel numaralı taşınmazlar üzerine Yenilenebilir Enerji Kaynaklarına Dayalı Üretim Alanı (Güneş Enerjisi Santrali) olarak belirlenmesine ilişkin UİP-351018657 Plan işlem numaralı 1/1000 ölçekli Uygulama İmar Planına ilişkin evraklar halkımızın tetkiki için 10.08.2023 ve 11.09.2023 tarihleri arasında Belediyemiz girişindeki ilan panosunda asılmış ve internet sayfasında ilan edilmektedir.


İzmir,Ödemiş Belediyesi

Çorlu Belediye Başkanı Hatip Mahallesi'ndeki Sokak Çalışmalarını Denetledi

Tarsus Belediyesi Ekim Meclisinde Önemli Kararlar Alındı

Bayraklı'da Kadın Emeği Pazarı Açıldı

Tepebaşı Belediye Başkanı Ataç, Eskişehir'deki Fabrikaları Ziyaret Etti

Tepebaşı'nda İlkokul Öğrencilerine Beslenme Desteği Sürüyor

Minik Öğrenciler Hayvan Barınağını Ziyaret Etti

CHP Tepebaşı Yönetimi Başkan Ataç'ı Ziyaret Etti

Serebral Palsi Farkındalığı İçin Dayanışma Gecesi Düzenlendi

Nilüfer Belediyesi ve Bursa Uludağ Üniversitesi'nden stratejik iş birliği

16.5°