Önerler Mahallesi İmar Uygulaması Askıya Çıkartıldı

CHP 25.12.2023 19:54:19 0
Önerler Mahallesi İmar Uygulaması Askıya Çıkartıldı

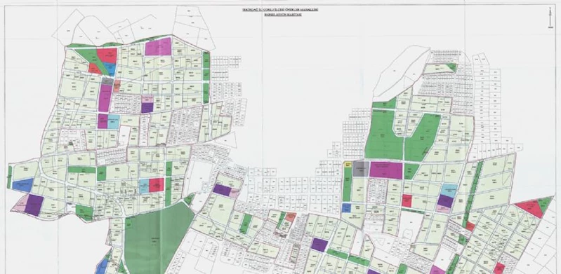
Konuyla ilgili olarak açıklamada bulunan Çorlu Belediye Başkan Yardımcısı İbrahim Turgut Bolat, plan çalışmasının 20 Aralık 2023 tarihinde askıya çıkarıldığını, 2019 yılında Tekirdağ Büyükşehir Belediyesi tarafından onaylanan Önerler Mahallesi 1/1000 Uygulama İmar Planı doğrultusunda İmar Uygulaması çalışmalarının tamamlandığını ifade ederek, “Toplam 252 adet kadastral parsel (3.288.092,08 m2) üzerinde yapılan 3194 sayılı İmar Kanununun 18’inci madde uygulaması neticesinde %37,27’lik DOP kesintisi ile 314 adet (1.918.315,05m2) konut alanı oluşturulurken, 5 adet anaokulu, 7 adet ilkokul, 5 adet ortaokul, 2 adet lise, 3 adet sosyal tesis, 2 adet kültürel tesis, 5 adet sağlık tesis alanı, 2 adet açık spor tesis alanı, 2 adet cami alanı, 2 adet otopark, 1adet meydan, 1 adet pazar alanı ve 2 adet belediye hizmet alanı olmak üzere toplam 39 adet parselde (310.520,16 m2) kamu eline geçecektir.

Bu kapsamda İmar Kanununun 18. maddesi uygulaması ile belediye meclisimizce onaylanmış ve kabul edilmiş kent planının alttaki kadastral mülkiyetle uyumlaştırılması ve örtüştürülmesi sağlanmış oluyor. Bu durumda düzenleme ortaklık payıyla elde edilen kamusal alanlar, yollar, parklar, okullar, pazar alanları, sağlık tesis alanı, resmî alanlar, otopark alanları ve spor alanları gibi alanlar da, kamunun mülkiyetine geçmiş olacak. Böylelikle sağlıklı ve yaşanabilir bir çevreye sahip sağlıklı bir kentleşme sağlamak amacıyla da bu işlem gerçekleşmiş olacak. İleriye doğru çok iyi dönüşler elde etmiş olacağız.

Ayrıca bu yapılan işlemle birlikte, içme suyu, kanalizasyon gibi altyapı hizmetleri ve yol hizmetleri konusunda her türlü işlemler rahatlıkla yapılabilecek. İşlem sonunda bahse konu muhtelif alanlar kamusal alan olarak belediyenin hüküm ve tasarrufu altına geçmiş olacak.

Bu çerçevede, kentimizde sağlıklı bir alt ve üstyapı hizmeti verilebilmesi amacıyla Çorlu Belediyesi’nin 29.11.2023 tarih ve 2023/1292 sayılı Encümen Kararına istinaden Tekirdağ Büyükşehir Belediyesi Encümeni’nin 14.12.2023 tarih ve 3405 sayılı kararı ile onaylanan ilçemiz, Önerler Mahallesi’nde 252 parsel ile Kazımiye Mahallesi 203 ada 21 no.lu parselleri kapsayan alanda yapılan 3194 Sayılı İmar Kanununun 18’inci madde uygulamasına ait parselasyon planının 20.12.2023 tarihi 1’inci gün olmak üzere Çorlu Belediyesi Plan ve Proje Müdürlüğü ilan panosu ve belediyemiz www.corlu.bel.tr internet sitesinde 1 ay süre ile ilana çıkarılmıştır.” dedi.

Detaylı bilgilere aşağıdaki linkten ulaşabilirsiniz:

https://www.corlu.bel.tr/imar-aski-duyurulari-d/4/242/18--madde-uygulamasina-ait-parselasyon-plani


Tekirdağ,Çorlu Belediyesi

Kaleiçi Old Town Festivali başladı: 21 ülkeden 26 şehir Antalya'da buluştu

Nilüfer'de Geleneksel Bitkisel Atık Yağ Toplama Yarışması başlıyor

Ahmet Yesevi Mahallesi Kadın Derneği yeni merkezinde hizmet verecek

Yüksekalan Mahallesi Çevreci Komşu Kart'ta Eylül Şampiyonu

Mersin Büyükşehir'den Afet Döneminde Ruh Sağlığı Vurgusu

Milli Judocular Başkan Balaban'ı Ziyaret Etti

Alanya kırsalında yağış sonrası Büyükşehir ekipleri seferber oldu

Yalova'da Etkili Yağış Sonrası 154 Noktaya Müdahale

Yalova Belediyesi ve Teknosa E-Atık Geri Dönüşüm İş Birliği Başlattı

18.6°