288 ADA 8 PARSELE AİT UYGULAMA İMAR PLANI DEĞİŞİKLİĞİ

CHP 16.03.2023 16:37:49 0
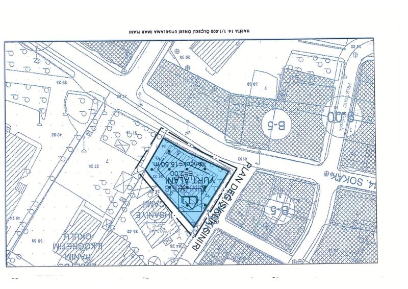
288 ADA 8 PARSELE AİT UYGULAMA İMAR PLANI DEĞİŞİKLİĞİ

İlçemiz İhsaniye Mahallesi 288 ada 8 parselde ‘Yurt Alanı’ amaçlı Plan değişikliği teklifi Belediyemiz Meclisinin 04.01.2023 tarih ve 4 sayılı kararı ile kabul edilmiştir.

Onaylanan,  Plan değişikliği teklifi Balıkesir Büyükşehir Belediyesi Meclisinin 23.02.2023 tarih ve 161 sayılı kararı ile onanmış olup, 3194 sayılı İmar Kanunun 8/b maddesine istinaden bir ay süre ile ilan edilmek üzere askıya çıkarılmış olup; Belediyemiz İnternet sitesinde yayınlanmaktadır.

İlgililere ilanen duyurulur. 16.03.2023


Balıkesir,Bandırma Belediyesi

Antalya İtfaiyesi'nden Levent Okutan'a Son Veda

Altınordu'da Yeni Hizmetler: Konservatuvar, 24 Saat Açık Kafe ve Refakatçi Evi Hazır

Altınordu'da Belediye-Vatandaş İş Birliğiyle İki Mahallede Yol Sorunu Çözüldü

Sülüklü Beach ve Mimoza Cafe Kış Konseptiyle Hizmete Başladı

Bursa'da Çiftçilere 14 Ton İtalyan Çimi Tohumu Dağıtımı

Başkan Bozbey BM Forumu'nda Bursa'nın Sürdürülebilirlik Projelerini Anlattı

BursaRay'da LED dönüşümü ile yüzde 80 enerji tasarrufu

Bursa'da istinat duvarları Uludağ'ın endemik bitkileriyle renkleniyor

Bursa'da Zeytin Kuşu Eseri Kadın ve Edebiyat Söyleşileri'nde Konuşuldu

13.2°